Capital City Club
Crabapple Golf Course Renovation
Master Plan
Holes
Practice Facility
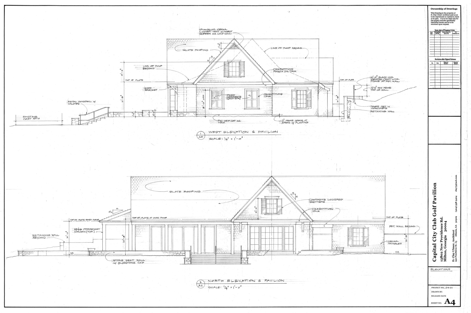
Halfway House
Videos
×
Search